Schaffhauserhof Glattbrugg

SCHAFFHAUSERHOF GLATTBRUGG

Bärenplatz

BÄRENPLATZ FAHRWANGEN

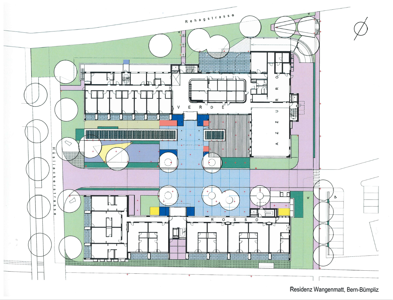
Wangenmatt Bern

RESIDENZ WANGENMATT BERN

Bahnhofpark Baar

Altersheim Rebwies

KUNST AM BAU ALTERSZENTRUM REBWIES ZOLLIKON

Bänninger Utzwil

Roggenboden Baden

RESIDENZ ROGGENBODEN BADEN

Park Walensee

Am Bach Hunzenschwil